Lot 227
Available
18a Tangaroa Street Cambridge
PACKAGE PRICE: $1,650,000
House & Land Package
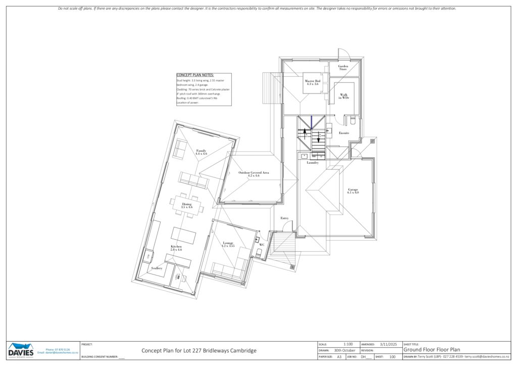
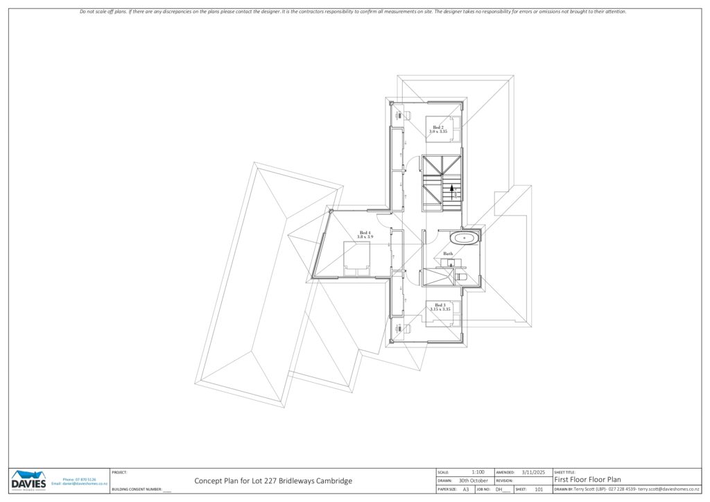
Bridleways Package – 268m²
Guaranteed to impress
All of our sections in Bridleways Estate will be sold as House & Land packages, with all-inclusive fixed-price contracts.
House & Land Package – 268m², 18a Tangaroa Street – The presented package has been designed for Lot 227, priced at $1,650,000.00 (TBC developed design and specification).
Our all-inclusive fixed-price contract includes everything required to build the home and finish the land, from your initial design & council fees to the final finishings & landscaping.
All aspects of this package can be fully customised, subject to the subdivision guidelines and covenants. Pricing is subject to final design and selections. Full pricing documents and specifications are available upon request.
Package Includes
- Council & Consent Fees
- Engineering & Inspection Fees
- Customisable Architectural Design
- Interior Designer Consults
- Excavation, Drainage & Foundations
- Slimline Water Tank
- Exterior Claddings
- Roofing, Fascia & Spouting
- Wall & Ceiling Insulation
- Thermally Broken Joinery
- Solar Energy
- Ducted Air Con System
- Architraves, Skirting & Coving
- Flooring & Wall Finishings
- Plumbing Fittings
- Door Hardware
- Designer Kitchen & Appliances
- Wardrobe Systems
- Interior & Exterior Lighting
- Concrete Drive & Paths
- Landscaping Design
- FencingKwila Decking
- Hydroseeded Lawns
- + optional extras & upgrades
Location


Daniel Davies
Managing Director / New Home Consultant
+64 212284533
daneil@davieshomes.co.nz
Enquire Today
your details









